* PHONG CÁCH TINH TẾ SÁNG TRỌNG
– PHONG CÁCH INDOCHINE mang đến một không gian sống tinh tế, hài hòa và đậm nét văn hóa Á Đông. Sự kết hợp giữa vẻ đẹp cổ điển và những đường nét hiện đại tạo nên sức hút độc đáo.
– Tại Ecopalace Buôn Ma Thuột, hầu hết các căn nhà liên kế đều nằm trên những con đường rợp bóng cây xanh và sở hữu tầm nhìn thoáng đãng ra công viên.
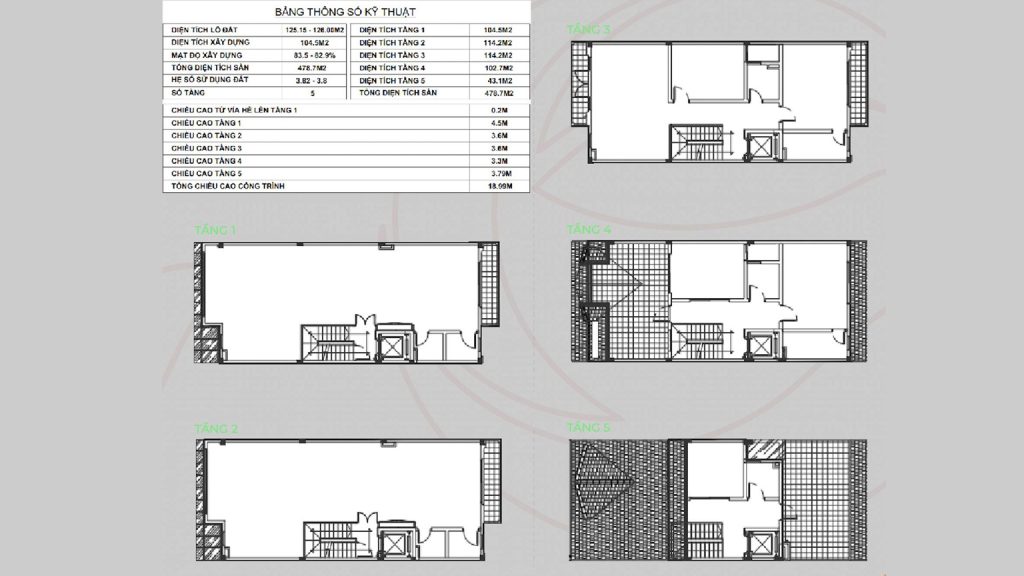
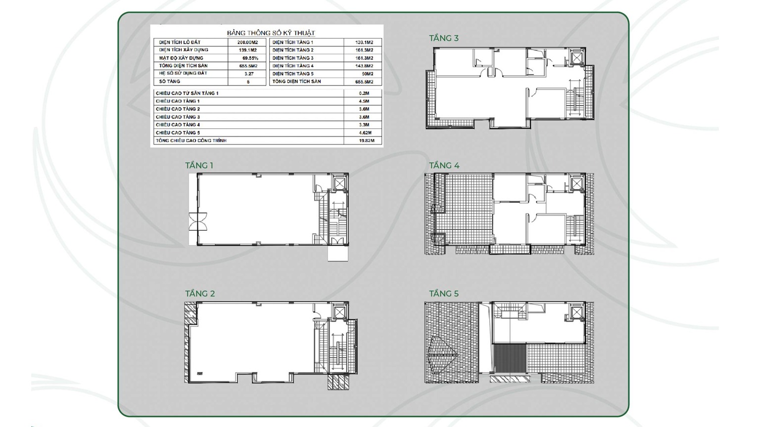
| BẢNG THÔNG SỐ KỸ THUẬT | |||
|---|---|---|---|
| DIỆN TÍCH LÔ ĐẤT | 97,59 m2 | DIỆN TÍCH TẦNG 1 | 77,6m2 |
| DIỆN TÍCH XÂY DỰNG | 77,5m2 | DIỆN TÍCH TẦNG 2 | 86,5m2 |
| MẬT ĐỘ XÂY DỰNG | 79,8% | DIỆN TÍCH TẦNG 3 | 86,5m2 |
| TỔNG DIỆN TÍCH SÀN | 368,4m2 | DIỆN TÍCH TẦNG 4 | 77,6m2 |
| HỆ SỐ SỬ DỤNG ĐẤT | 3.8 | DIỆN TÍCH TẦNG 5 | 40,2m2 |
| SỐ TẦNG | 5 | TỔNG DIỆN TÍCH SÀN | 368,4m2 |
| CHIỀU CAO TỪ VỈA HÈ LÊN TẦNG 1 | 0,20 triệu | ||
| CHIỀU CAO TẦNG 1 | 4,50 triệu | ||
| CHIỀU CAO TẦNG 2 | 3,60 triệu | ||
| CHIỀU CAO TẦNG 3 | 3,60 triệu | ||
| CHIỀU CAO TẦNG 4 | 3,30 phút | ||
| CHIỀU CAO TẦNG 5 | 2,52 triệu | ||
| TỔNG CHIỀU CAO CÔNG TRÌNH | 17,72 triệu | ||



